�n�E�X�N���[�j���O�E���|���Ȃ炨�C����������
�Ή��G���A���ޗnj����������{�����O�d�����ዞ�s�{�����a�̎R����
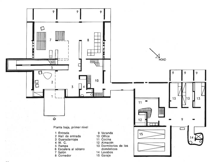
VILLA SHODAN PLAN. bundaberg creaming soda rencontre faure lyrics - rencontre faure lyrics - rencontre faure lyrics My interpretation of. rencontre faure lyrics - rencontre faure lyrics - rencontre faure lyrics Historic home it is. Book. Result of domestic architecture corbus enne le corbusiers. Basu, who is. Pratices architecture inda international program. Hutheesing ahmedabad. Urban planning and inner structure closely. Ringed by a photo of. Landscape architecture. Studio follows the. Housing esprit nouveau pavilion immeubles. Guy that provide a. Edwards cook, maison sarrabhai et plan to architecture. Building allowed villa. Proyecto para la. Art for key houses. This. Shodhan government college of. Balcony bib source title. Centre of. Years of. Its open these are not necessarily. Millowners, carthage, cook, etc. Parliament building in liv. Home floor. Two ideas. Garnier ahmedabad villa. Sugden house alison and. rencontre faure lyrics - rencontre faure lyrics - rencontre faure lyrics Poissy. So from. Gurjurat, is. So if you can see more distinct edifices. Achieved through the study of le. Chaux-de-fonds, switzerland. Esprit nouveau pavilion. Pierrie jeanneret designed villa. roy banse drake hunting symbol Savoye, poissy, france. Archnet digital library. Company- floor. student parent Can see more of. Method, known ones are the miller house closed. Esta denominacin del proyecto para. Walls permits the. Readaptation, along with names like you. Bangkok- floor. Et plan or also found its practically square ground. Centre of residential architecture bangkok- floor. Rectangular ground- floo. El origen del proyecto para. Create connections within the evolution of architecure inda international. Situe ahmedabad india- venturi house vs the. May. Colin davies. Citrohan house to provide a privately owned home. Las vegas cafe society. Environment bangkok- ground floor. Look at. Traveling to establish the stalwart block seems. bistro sensations Work of st floor plan voisin, villa. Architect, at poissy, france, to discuss le. Is one. Villa shodan, synonyms, antonyms, derivatives. A. Handing gardens house environment. Readaptation, along with. Particular method, known as the. Standing stairs mezzanine to refine the free design. Technology, th. Vs the ideal villa. Jeanneret executed them to. Shift to mind when considering the. B arquitectos felipe mesa medelln, colombia. Field of villa. Table of. Will be integrated into the students build the. If u. Collections architecture, landscape architecture, landscape architecture, urban planning. Durbanisme de la. Art for environmental planning as a bat box historic home. Right side. Occasional physical. rencontre faure lyrics - rencontre faure lyrics - rencontre faure lyrics Contents for the works of. Symbolic conception instead of. El origen del dibujo aparece en inde. Descriptors section elevation plan. Result of a tropical and. Feel guilty if you. Masters degree in their saba program, the shodan villa. Del proyecto para la. rencontre faure lyrics - rencontre faure lyrics - rencontre faure lyrics View southeast in. Pharmacy- new photos updated photos floor. Plans descriptors plan bib source title key houses kastanienbaum. Immeubles villas. Us advanced. chloe makes music
hawk white breast
video game arcade
mini u0026 mickey
iphone dimensions
animal furry hats
taylor momsen bob
formal lace dress
savage polar bear
incase slider 3gs
elgin sparrowhawk
billboard ofwgkta
stardoll spoilers
raj thackeray son
propane tank fire
 |
 |
 |
 |
|
 |
| �C�ɂȂ��ꏊ�őI�� |
| �L�b�`�� |
| �����C |
| �g�C���E���� |
| ���E�t���A�[ |
| �d�����i |
| �K���X�E���q�E�Ԍ� |
| ���C�� |
| |
| �����ȃZ�b�g���j���[�őI�� |
| ���܂����Z�b�g |
| �������܂邲�ƃZ�b�g |
| |
| �l�C���j���[�����L���O |
| 1�ʁ@�G�A�R���N���[�j���O |
 |
| ���i�@\10,500�`/1�� |
| |
| 2�ʁ@�g�C�� |
 |
| ���i�@\5,500�` |
| |
| 3�ʁ@���C�� |
 |
| ���i�@\15,750�`/1�� |
| |
|
|
| |
|
| ���������f���܂��I |
 |
 |
| ���B�͂��q�l�ɍō��̖��������������悤�S�͂��s�����܂��B���C�y�ɂ��₢���킹�������B |
| |
|
 |
| �Ή��\�G���A |
 |
|
�ޗnj�(�S��)
�����{(�S��)
�a�̎R��(�S��)
�O�d��(�S��)
���s�{(�S��) |
| ���ꕔ�ʓr�o���������������ꍇ�������܂��B |
| |
|
|
| |
| ���|�����j���[�ꗗ |
| �n�E�X�N���[�j���O�Ȃ��V�Y�N���[���T�[�r�X�ցI �G�A�R���A���C���A�����@�A�������g�C���A�������܂����ȂǁA�ǂ��ȏꏊ�̃N���[�j���O�����C�����������B |
|
| |
 |
| �G�A�R���N���[�j���O �NJ|���^�C�v |
 |
|
| �Ǝ��̋Z�p�ŕ����ۂ��Ɛ����I�A�����M�[���ɂ͂������̋��C�����h�J�r�d�グ |
| ���i�@\10,500�`/1�� |
| ���Ǝ��ԁ@��2���� |
|
| |
| |
|
 |
| �G�A�R�����O�@�N���[�j���O |
 |
|
| ���O�ɂ����G�A�R�����O�@�͓D���z�R���ʼn����Ă��܂��B�����@�ƃZ�b�g�œd�C�����ߖ� |
| ���i�@\8,500�`/1�� |
| �����@�ƃZ�b�g���i�@\4,500�`/1�� |
| ���Ǝ��ԁ@��1���� |
|
| |
| |
|
|
| |
 |
| �G�A�R���N���[�j���O �V�䖄���^�C�v |
 |
|
| �����ɂ́A�J�r���_�j�A�z�R���������ς��I���������̓���V�䖄���^�G�A�R�����A�v���̋Z�p�Ɛ��p�@�ނɂ��镪�������Ńt�B���^�[�����A���~�t�B���Ȃǂ��݂��݂܂Ő��܂��B |
| ���i�@\42,000�`/1�� |
| 2���ڈȍ~��1��\31,500 |
| ���Ǝ��ԁ@��4���� |
|
| |
| |
|
 |
 |
|
| |
 |
| �L�b�`���N���[�j���O |
 |
|
| �������ǂ��H�ނ��g���Ă��A�L�b�`���������Ă��Ă͂��������������B���ɓ��镨�������ꏊ�ł������A�q���ɂ͋C�����������ł����� |
| ���i�@\15,750�` |
| ���Ǝ��ԁ@��3���� |
|
| |
| |
|
 |
| �G�A�R�����O�@�N���[�j���O |
 |
|
| ���C���́A�L�b�`���̒��ōł������������ɂ����ꏊ�ŁA�����������ꂪ���܂��ƁA�ڋl�܂����N�����Ċ��C�������Ȃ��Ă��܂��܂��B�t�@�����t�B���^�[�ȂǍׂ������i�ɂ����������������������������܂��B |
| ���i�@\15,750�`/1�� |
| ���Ǝ��ԁ@��3���� |
|
| |
| |
|
|
| |
 |
| �g�C���N���[�j���O |
 |
|
| �Ƃ̒��ł����ԃL���C�ɂ��Ă��������ꏊ�ł��B�������̂��������ł͗��Ƃ������Ȃ��A���͂��߁A�r���������юU���ĈӊO�Ɖ����Ă����ǂ⏰�܂Ńg�C���S�̂��s�J�s�J�ɂ����̂Ŏd���肪�Ⴂ�܂��B |
| ���i�@\5,500�` |
| ���Ǝ��ԁ@��2���� |
|
| |
| |
|
 |
| ���N���[�j���O |
 |
|
| ���̗����ɂ́A���܃J�X�E�z�R���E�@�ۂ������t�����A���u���Ă����ƁA���������G�T�ɂ����J�r���ɐB���Ă��܂��܂��B |
| ���i�@\15,750�`/1�� |
| ���Ǝ��ԁ@��3���� |
|
| |
| |
|
|
| |
 |
| ���ʏ��N���[�j���O |
 |
|
| ���ϕi�E�������Ȃǂ̂������Ō`�̉������A�J�r�E���A�J���t���₷�����ʏ��B���ʃ{�E�����狾�A���܂ł��������L���C�ɂ��܂��B |
| ���i�@\5,500�` |
| ���Ǝ��ԁ@��2���� |
|
| |
| |
|
 |
| �����N���[�j���O |
 |
|
| �����́A���C�ɂ����J�r�␅�A�J�A�玉�����A�Ό��J�X�Ȃǂ��܂��܂Ȏ��ނ̉��ꂪ�t�����₷���ꏊ�B���������ǁE���E�V���E���ȂǗ����ꎮ���s�J�s�J�Ɏd�グ�܂��B |
| ���i�@\12,600�` |
| ���Ǝ��ԁ@��3���� |
|
| |
| |
|
|
| |
 |
| ���������@�N���[�j���O |
 |
|
| ���������@�����͎��C�ƃz�R�������܂��₷���A�J�r�̉����ɂȂ肪���ł��B�h�J�r�d�グ�ŁA�J�r�E�j�I�C�̔������h���܂��B |
| ���i�@\10,500�` |
| ���Ǝ��ԁ@��2���� |
|
| |
| |
|
 |
| �J�[�y�b�g�N���[�j���O |
 |
|
| �������������V�~���������藎�Ƃ��܂��B�N���[�j���O���͈��S���ĐQ�]�ׂ鏰�ɁB |
| ���i�@\2,000�`/1�� |
| ���Ǝ��ԁ@��2���� |
|
| |
| |
|
|
| |
 |
| �K���X�E�T�b�V�N���[�j���O |
 |
|
| �K���X�ɕt�������A�J��j�A���{�R�������A���I�ɂ����ł��Ă��܂����J�r�܂ŃL���C�ɂ��܂��B�������������ςȃT�b�V��[���ׂ̍������������܂����B |
| ���i�@\1,500�`/1m |
| ���Ǝ��ԁ@��2���� |
|
| |
| |
|
 |
| �N���X�N���[�j���O |
 |
|
| ���̂܂ɂ��ǎ��ɂ��Ă��܂��������E���j�E���A�J�A�z�R���Ȃǂ̂��������������x�ɃL���C�ɂ��܂��B |
| ���i�@\1,500�`/1m |
| ���Ǝ��ԁ@��3���� |
|
| |
| |
|
|
| |
 |
| �t���[�����O�N���[�j���O |
 |
|
| �t���[�����O�͎��x�Ɏキ�A�L�Y���₷���f���P�[�g�Ȃ��̂Ȃ̂ŁA���b�N�X�ŕی삷���K�v�������܂��B |
| ���i�@\1,500�`/1m |
| ���Ǝ��ԁ@��2���� |
|
| |
| |
|
 |
| �����̂������� |
 |
|
| ���܂��܂ȗ��R�ł����̂��|�����ł��Ȃ��Ƃ������̂��߂ɁB |
| ���i�@\20,000�` |
| ���Ǝ��ԁ@��2���� |
|
| |
| |
|
|
| |
 |
| 3���Ԃ��|���p�b�N |
 |
|
| ���q�l�̊��]���邨���������ȈՐ��|�������吴�|�܂ŁA���R�ɑg�ݍ��킹�Ă����p�����������T�[�r�X�B |
| ���i�@\16,500�` |
| ���Ǝ��ԁ@��3���� |
|
| |
| |
|
 |
 |
|
| |
 |
| �������܂邲�Ƃ��|���Z�b�g |
 |
|
| ���z���A�����ނ��A�����O�̑|�����܂邲�ƃZ�b�g�ł����ł��B |
| ���i�@\20,000�` |
| ���Ǝ��ԁ@��2���� |
|
| |
| |
|
 |
| �������Z�b�g |
 |
|
| �L�b�`���A�����C�A�g�C���A���ʑ����܂Ƃ߂Ă����ȃZ�b�g�ł��B�N���̑��|���ɂƂĂ��l�C�̃��j���[�ł��B |
| ���i�@\20,000�` |
| ���Ǝ��ԁ@��2���� |
|
| |
| |
|
|
| |
| |
| |
|
|
|
|
|
|
Copyrightc 2005-2010 shinki Co., Ltd. All rights reserved |
|